

空间拥有着无限的延展,没有人可以无限的定义空间,但每个人都或多或少在心中对空间有着属于自己的定义。于住宅空间而言,其核心是对家庭的诠释与居住者生活的表达,不一定奢华,只要能深入人心,就是最好的诠释。

Warm temperament
温润气质
生活凝聚着众多或独特或广泛的情感,而许多哲人说,被热烈、未知、欢愉等等状态调和的生活,其最好的常态,是温和而有回味的。

你可能无法简单言说步入某个空间的一瞬间就有被包容,接纳甚至产生归属感的真正原因到底的是什么,但毫无疑问,空间的气质已经在这一刻开始了与你的对谈。

在本方案中,贯穿始终的柔软浅米色调为空间带入了阳光的质感。同时,不同材质光感的变化与融合,使得同一色系在平面与立面之间产生了交错的视觉转换,让一切变得生动起来。如此成就了舒适而精致的感官。

Space philosophy
空间哲学
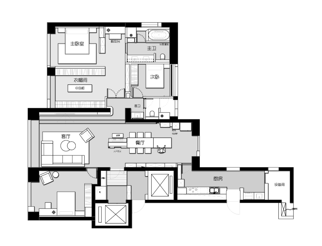
人在空间之中的行走动态与空间的功能划分映射着住宅空间的功能精髓。

让渡于屋主对乐器的使用需求,设计团队将入户玄关的机能与钢琴区共同成为公共活动区域的中心。 西厨与餐厅的结合,中心的半遮蔽与两侧的通透,建立了空间彼此的分隔与交流的互通。

合理的空间布局与动线规划对空间的高效利用与居住体验起着至关重要的作用。玄关是屋内和屋外之间的一处转折空间。玄关恰如其分的设置,不仅能够增加空间的层次,同时也能将大部分私人空间隐藏在内。隐约之间,停顿背后,不仅宣示着家的抵达,也是空间一种仪式感的起始。



收纳区域规划的合理性直接决定了住宅空间的功能体验感。设计团队利用主卧室中走廊空间设置开放储物间与衣帽间,在整个使用动线中显得恰到好处。精致的整木产品定制系统无限的增加了收纳区域的设计表达与使用体验。使历经家庭生活沉淀的琐碎却富有记忆的物品得到安然有序的放置。

Life expressing
生活语言
生活的语言是抽象的。而于空间中所上演的种种生活细节,将所有抽象的情节演绎成片段。因空间设计而产生的一切色彩、结构、元素,成为了这些情节的最好布景。


因此,设计团队充分考虑了屋主本身的使用习惯。客厅隐形门后的客卧空间,给予了满足常规储物需求后最大的宽敞感,同时兼顾了客人和家人的空间体验。


主卧室和儿童房的区位布局,既注重长久的隐私考虑又兼顾了亲密感。儿童房进门位置是与客用卫生间最近的动线区域,同时又和主卧室相邻。主卧室的专属感和仪式感相互融合,同时,也兼顾了卧室使用本身私密属性。


Original Structure 原始结构

After Design 改造后
